Rechtskräftige Bebauungspläne

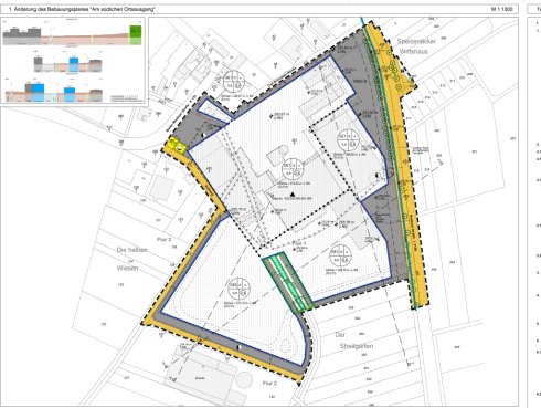
1. Änderung "Am südlichen Ortsausgang Rohrbach

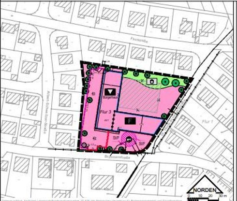
Berichtigung des FNP im Bereich "Nördlich Roßdörfer Straße"

Inkrafttreten Bebauungsplan Nördlich Roßdörfer Straße
Berichtigung des Flächennutzungsplans




Berichtigung des Flächennutzungsplans
